Container straddle truck
- 40t
- A7
- A8
-
Container spreader
- Product Overview
- Application Scenario
- Certificate
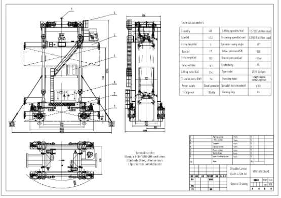
Container transporter gantry crane also mainly used in ship handing, large structure handing, loading and unloading. Adapt multiple lifting points combined spreader, it can satisfy all kinds of complicated operation condition required by customer. Container transporter gantry crane can rotated 360 degree around the crane center flexible, all the hydraulic transmission mechanism and the lifting mechanism can realize stepless transmission, it can satisfy all the operating requirements in different conditions, the travelling mechanism adopts hydraulic circuit, has the advantage of high efficiency transmission and low failure rate. There is perfect safety instructions and overload protection device to ensure the safety of the operator and equipment. All the action of mechanisms are adopted can-bus control.










