Explosion-proof Overhead Crane is a double girder overhead crane with new-style explosion-proof trolley frame electric hoist. It has the advantages of superior performance, safe, reliable, energy -saving, efficient, and low noise and environmental protection. It is working at the warehouse, workshop, and power plant with explosive gas.
Features:
1, Overhead traveling on the steel structure, normally in workshop, heavy working duty from A5-A8.
2, Could be used in explosive environment.
3, Soft start, 3-5 speeds to operate, very stable to lift and running.
4, Six direction action, to make sure the enough wide working area.
5, Full safety system as follows:
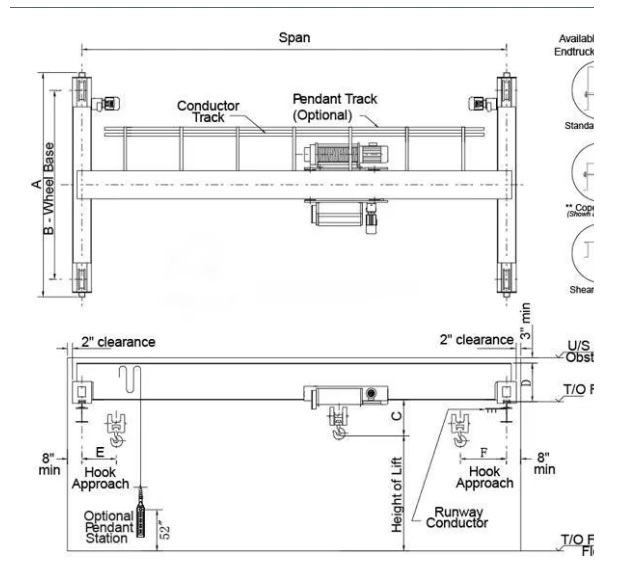
Explosion Proof Electric Crane
Weight overload protection、Emergency stop system、Over current protection,Short-circuit protection、Phase sequence protection、Zero position protection、Voltage loss protection、Limit switch and stopper for crane long traveling and cross traveling、Lifting overhigh and overlow limit switch、Anti explosion.
The Explosion - proof Overhead Crane is a specialized and highly engineered solution designed to operate safely and efficiently in environments where explosive gases are present, such as certain types of warehouses, workshops, and power plants.
1. Warehouse Applications in Hazardous Environments
Safeguarding Storage and Material Handling
In warehouses dealing with flammable or explosive goods, the presence of explosive gases is a constant risk. The Explosion - proof Overhead Crane is meticulously crafted to mitigate this danger. Its construction incorporates special materials and design features that prevent the ignition of the explosive gases. For example, all electrical components are enclosed in explosion - proof enclosures, which are designed to contain any potential sparks or heat sources generated during normal operation.
When handling pallets of highly volatile chemicals or flammable liquids stored in large drums, the crane's robust lifting mechanism, combined with its explosion - proof design, ensures that the transfer of goods from the receiving area to storage racks and vice versa can be carried out smoothly. It enables workers to manage inventory in a way that minimizes the risk of an explosion, thus maintaining a safe working environment while maximizing operational efficiency. The crane's ability to move heavy loads precisely also helps in optimizing the use of warehouse space, as it can place items in the most suitable storage locations with great accuracy.
2. Workshop Applications in Explosive Atmospheres
Enabling Safe Manufacturing Processes
Workshops involved in industries like petrochemicals, paint manufacturing, or certain types of mining operations often have an atmosphere laden with explosive gases. In such workshops, the Explosion - proof Overhead Crane plays a crucial role in facilitating manufacturing processes.
During the production of chemical products, for instance, large reaction vessels or storage tanks need to be moved and positioned accurately. The crane's explosion - proof features allow it to perform these tasks without endangering the workers or the facility. Its smooth operation and precise control ensure that delicate manufacturing operations can be carried out even in the presence of explosive gases. Additionally, in mining workshops where methane or other explosive gases may be present, the crane can be used to handle heavy equipment and materials, enabling the maintenance and repair of mining machinery in a safe manner. This helps to keep the production lines running smoothly while adhering to strict safety standards.
3. Power Plant Applications in Hazardous Conditions
Ensuring Uninterrupted Power Generation
Power plants, especially those that deal with fossil fuels such as coal - fired power plants or gas - fired power plants, may have areas where explosive gases are present. The Explosion - proof Overhead Crane is an essential asset in these power plants.
During the maintenance and repair of gas turbines or boilers, which are critical components in power generation, the crane is used to lift and move heavy parts. Since these areas may have a risk of gas leaks, the explosion - proof design of the crane is of utmost importance. It allows for the safe handling of components, such as turbine blades or boiler tubes, ensuring that maintenance work can be carried out without the threat of an explosion. This, in turn, helps to minimize downtime in power generation, as the crane enables quick and efficient replacement of worn - out parts. In addition, in power plants that handle flammable fuels, the crane can be used to transport fuel - related equipment or materials in a secure manner, contributing to the overall safe and continuous operation of the power plant.