location
Home / Products / Explosion-proof Single Girder Overhead Crane
Explosion-proof Single Girder Overhead Crane
1.webp
799a1d58561967a8247b16144c1aeeba.webp
6e5fba844497e3c67980cd4b063fa395.webp
1.webp
799a1d58561967a8247b16144c1aeeba.webp
6e5fba844497e3c67980cd4b063fa395.webp
Authentication mark:
CCC
CE
Explosion-proof single overhead crane can be used at workshop, warehouse, power station, etc.
Capacity:
1-16 ton
Lifting Height:
20m
Span:
5.5-31.5m
Voltage/Hertz:
380V / 400V /415V / 460V
Working Class:
A5
Get A Free Quote
Introduction
Application Scenario
Advantages
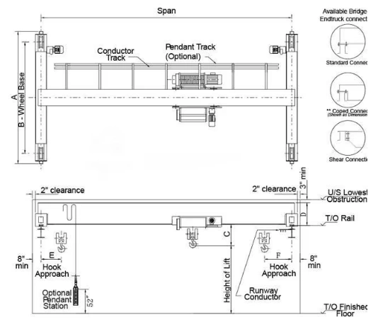
Structural Diagram And Parameter Table
Introduction
Explosion-proof Single Girder Overhead Crane is a professional lifting equipment specially designed for flammable, explosive and corrosive working environments. It integrates lifting, moving and positioning functions, adopting high-quality explosion-proof materials and special structural design to ensure safe operation in hazardous areas. The equipment is equipped with explosion-proof electrical components and safety protection devices, which can effectively prevent sparks and electric arcs, avoid potential safety hazards such as explosions and fires, and provide stable and reliable lifting support for industrial production in hazardous environments. It is widely used in industries with special safety requirements, combining practicality and safety to meet the lifting needs of various hazardous work scenarios.
Application Scenario
Explosion-proof Single Girder Overhead Crane is mainly applied to industrial fields with flammable, explosive or corrosive working environments, covering petroleum, chemical, pharmaceutical, coal, grain processing and other industries. In petroleum and chemical workshops, it is used to hoist and transfer flammable and explosive raw materials, chemical reagents and equipment components. In pharmaceutical factories, it is used to handle flammable and volatile pharmaceutical raw materials and finished products. In coal mines and coal processing plants, it undertakes the lifting and transportation of coal and related equipment, adapting to the flammable and dusty working environment. It is also applicable to warehouses and production workshops storing flammable and explosive goods, realizing safe and efficient handling of goods and ensuring the smooth progress of production.
Advantages
The core advantages of Explosion-proof Single Girder Overhead Crane lie in its excellent explosion-proof performance, stable operation and strong adaptability. It adopts high-quality explosion-proof materials and special structural design, and all electrical components meet explosion-proof standards, effectively preventing sparks, electric arcs and static electricity, ensuring safe operation in flammable and explosive environments. The single girder structure is compact and lightweight, occupying small space, which is suitable for various workshop layouts, especially for limited space and low-height working environments. It has strong load-bearing capacity, can stably complete the lifting of light and medium loads, and ensure the safety and stability of goods during handling. The control system is precise and easy to operate, realizing accurate positioning and smooth operation, reducing manual labor intensity and improving work efficiency. It has good corrosion resistance and wear resistance, can adapt to corrosive and harsh working environments, has a long service life, and the later maintenance is simple and convenient, reducing the use and maintenance costs. It can be customized according to the actual operation needs of different industries, with strong universality and practicality.
Structural Diagram And Parameter Table
diagram
parameter
CORE ADVANTAGES
1
HIGH QUALITY & STABLE PERFORMANCE
Built with premium materials and strict quality control, ensuring smooth and consistent operation even under heavy working conditions.
2
LONG SERVICE LIFE & LOW MAINTENANCE
Durable structural design reduces wear and tear, delivering long service life with minimal maintenance requirements.
3
HIGH EFFICIENCY & ENERGY SAVING
Optimized driving system ensures fast, responsive lifting while lowering energy consumption and operating costs.
4
HIGH SAFETY STANDARD & DURABLE STRUCTURE
Equipped with multiple safety devices and a rugged structure, providing reliable protection and long‑term durability.
5
CUSTOM DESIGN & FLEXIBLE SOLUTIONS
Fully customizable to different tonnages and working conditions, offering flexible lifting solutions for shipyards and marinas.
QUALIFICATION
product
product
product
product
product
product
product
product