location
Home / Products / Insulation Overhead Crane
Insulation Overhead Crane
b9b87fe24eba37f2e476f82ab734f6e3.webp
2.webp
b9b87fe24eba37f2e476f82ab734f6e3.webp
2.webp
Authentication mark:
CCC
CE
Insulation Overhead Crane is applicable to aluminum and magnesium smelting factories.
Capacity:
800ton, 5ton, 10ton, 16/3.2ton, 20/5ton
Lifting Height:
20 m, other
Span:
32m or customized
Voltage/Hertz:
380V
Working Class:
A7
Get A Free Quote
Introduction
Application Scenario
Advantages
Structural Diagram And Parameter Table
Introduction
Insulation Overhead Crane is a professional special lifting equipment specially designed for high-voltage electrical operation scenarios. It adopts a bridge-type structural design, made of high-strength steel and special insulation materials, integrating mechanical structure and insulation protection. It is equipped with high-performance insulated hoisting mechanism, stable traveling system and insulated control device, integrating lifting, moving and positioning functions. The whole machine adopts multi-level insulation design, which can effectively isolate high-voltage electricity, avoid electric leakage and electric shock accidents, ensure the safety of operators and equipment, and provide reliable lifting support for high-voltage electrical operation.
Application Scenario
Insulation Overhead Crane is mainly applied to high-voltage electrical related fields, covering power plants, power transformation stations, electrical equipment manufacturing plants, high-voltage laboratory and other places involving high-voltage operation. In power plants and power transformation stations, it is used to lift and transfer high-voltage electrical equipment, transformers, power cables and other components, ensuring safe operation during equipment installation, maintenance and replacement. In electrical equipment manufacturing plants, it undertakes the handling of high-voltage electrical components and finished products, avoiding damage to insulation performance during handling. In high-voltage laboratories, it is used to transfer high-voltage test equipment and samples, matching the high-voltage test work rhythm, and adapting to indoor high-voltage operation scenarios.
Advantages
Insulation Overhead Crane takes insulation safety, stable performance and strong adaptability as the core, with obvious advantages in high-voltage operation scenarios. It adopts multi-level insulation protection design, including insulated structural parts, insulated hoisting ropes and insulated control system, which can effectively isolate high-voltage electricity, meet the insulation requirements of different high-voltage levels, and completely eliminate electric leakage risks. It is made of high-strength steel and special insulation materials, with stable load-bearing performance and good insulation durability, which can adapt to long-term high-voltage operation environment. The hoisting mechanism and traveling system run smoothly, with precise control and accurate positioning, reducing collision and damage to high-voltage equipment during handling. It is equipped with perfect safety protection devices, including insulation detection, overload protection and emergency braking, further ensuring operational safety. The structure is reasonable, easy to install, debug and maintain, with low failure rate and low later operation and maintenance costs. It can be customized according to different high-voltage levels and load requirements, with strong versatility and practicality, fully meeting the safe lifting needs of high-voltage electrical related fields.
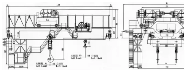
Structural Diagram And Parameter Table
diagram
parameter
CORE ADVANTAGES
1
HIGH QUALITY & STABLE PERFORMANCE
Built with premium materials and strict quality control, ensuring smooth and consistent operation even under heavy working conditions.
2
LONG SERVICE LIFE & LOW MAINTENANCE
Durable structural design reduces wear and tear, delivering long service life with minimal maintenance requirements.
3
HIGH EFFICIENCY & ENERGY SAVING
Optimized driving system ensures fast, responsive lifting while lowering energy consumption and operating costs.
4
HIGH SAFETY STANDARD & DURABLE STRUCTURE
Equipped with multiple safety devices and a rugged structure, providing reliable protection and long‑term durability.
5
CUSTOM DESIGN & FLEXIBLE SOLUTIONS
Fully customizable to different tonnages and working conditions, offering flexible lifting solutions for shipyards and marinas.
QUALIFICATION
product
product
product
product
product
product
product
product