Single Girder Gantry Crane
- 3t
- 5t
- 10t
- 16t
- 20t
- A3
-
Lifting hook
- Product Overview
- Application Scenario
- Certificate
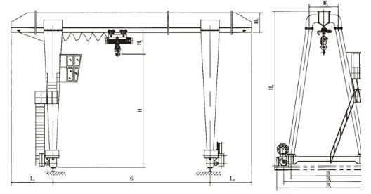
This single girder gantry crane, featuring a low clearance hoist as the lifting mechanism, is a marvel of modern design. Its excellent performance stems from precision - engineered components. Safety is built - in with multiple redundant safety systems, guaranteeing reliability in every operation. Energy - saving technologies are integrated, reducing power consumption and environmental impact. The crane operates with minimal noise, making it suitable for noise - sensitive environments.
Single Girder Gantry Crane
It's an ideal solution for workshops where space is tight, as the low clearance hoist allows for efficient use of vertical space. In warehouses, it can quickly move pallets and goods. Power stations benefit from its reliable handling of heavy equipment. At airports, it aids in cargo loading and unloading. This crane is a perfect fit for sites where bridge cranes can't be installed due to space or structural limitations.












