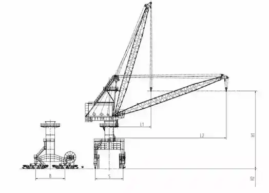
Single Boom Portal Crane
- 40t
- 45t
- A5
- A6
- A7
-
Lifting hook
-
Container spreader
- Product Overview
- Application Scenario
- Certificate
Single boom portal crane is widely used in ports, docks, yards and other places to complete the loading, unloading and transshipment operations of ships and vehicles. Its design, manufacture and inspection implement DIN, FEM, IEC, AWS, GB and other domestic and foreign advanced standards and the latest national standards. Single boom portal crane is divided into two types: single boom and four-link boom type according to the structure of the boom. The single-boom portal crane has simple structure, large lifting capacity and light weight.Portal Crane,Level Luffing Crane












