Clamps Crane YB
- 20t
- 35t
- 50t
- 65t
- 100t
- A6
- A7
- A8
- Product Overview
- Application Scenario
- Certificate
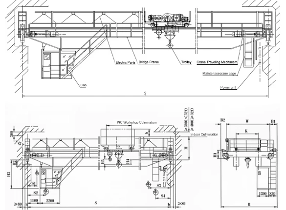
Slab clamp crane (Model YB) is a special equipment for handling slabs, especially for high-temperature slabs. It is mainly used for carrying high-temperature slabs in a continuous casting billet to steel billet storage, for handling room temperature slab at a heating furnace or product storage for stacking, loading and unloading operations.
This slab crane is able to lift slab or billet with the thickness more than 150mm, and slab temperature can be above 650 ℃.










